Logo

Touwbaan 1

4205 AB Gorinchem € 285,- per maand
Te huur
Foto's (14) Pagina afdrukken
Brochure

Oppervlakten

Kantoorruimte 21 m²
In units v.a. 21 m²

Omschrijving

Kleinschalige kantoorunits in het kantoorgebouw ‘Business Center Touwbaan’, vrijwel naast het treinstation en aan de rand van de historische binnenstad van Gorinchem. Op de begane grond en de 1e etage zijn kleinschalige kantoorruimten beschikbaar, ingedeeld in diverse kamers. Het gebouw ligt aan een van de verbindingswegen door Gorinchem. Het gebouw heeft een representatieve en prominente uitstraling. De kantoorunits zijn toegankelijk via een ruim opgezette entree met receptiebalie en wachtruimte. Op dit moment zijn er twee kantoorruimten op de 1e etage beschikbaar.

Locatie
Het kantoorgebouw ligt op een herkenbare locatie aan een verbindingsweg, vrijwel naast het stadskantoor, het treinstation en aan de rand van de historische binnenstad. Gorinchem ligt centraal in het land met een knooppunt van rijkswegen A15 en A27.

Bouwjaar
1999

Energielabel
Het gebouw beschikt over een energielabel C.

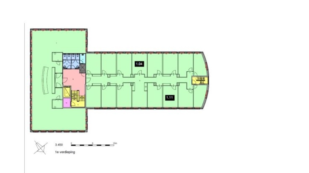
Oppervlakten
Eerste verdieping
• Unit 1.04: 21 m²
(Huur) € 285,- excl. btw per maand, (servicekosten) € 100,- excl. btw per maand.

• Unit 1.11: 22 m² ONDER OPTIE
(Huur) € 295,- excl. btw per maand, (servicekosten) € 100,- excl. btw per maand.

Parkeren
Het kantoorgebouw beschikt over een parkeerterrein, afsluitbaar door middel van een slagboom. In bovengenoemde huurprijzen is het gebruik van (een) parkeerplaats(en) nog niet inbegrepen. In overleg is het mogelijk om optioneel (een) parkeerplaats(en) te huren bij de kantoorunit(s). Huurprijs parkeerplaats: € 45,- per maand, exclusief btw.

Bestemmingsplan
Ter plaatse is het bestemmingsplan ‘Bedrijventerreinen en stationsomgeving’ van kracht. Het gebouw is bestemd als ‘Kantoor’ met functieaanduiding ‘dienstverlening’.

Bereikbaarheid
De bereikbaarheid van het object per (vracht-) auto is goed. De afrit Gorinchem/Vesting/Avelingen vanaf rijksweg A27 ligt op circa 4 autominuten afstand (2 km). Vanaf deze oprit ligt het knooppunt Gorinchem (rijkswegen A15 en A27) op steenworp afstand. Met het openbaar vervoer is de locatie goed bereikbaar via het trein-/busstation van Gorinchem. Dit station ligt op enkele tientallen meters loopafstand. De treinverbinding betreft de Merwede-Lingelijn (Dordrecht - Gorinchem - Geldermalsen).

Voorzieningen/installaties
Kantoorruimte
• de kantoorunit wordt opgeleverd in de huidige staat
• gezamenlijke entree met tochtportaal, trapopgang en personenlift
• wandgoten (waar aanwezig) ten behoeve van bekabeling
• draai-/kiepramen (waar aanwezig)
• systeemplafond met verlichting
• verwarming middels hybride warmtepomp
• koeling en mechanische ventilatie
• gezamenlijke dames en heren toiletgroep

Bouwkundig
• Het terrein voor de bedrijfsruimte is verhard met betonklinkers
• bouwjaar 1999
• energielabel C
• onderheide betonfundering
• betonnen vloeren
• betonconstructie
• gevels metselwerk (geïsoleerde spouwmuren) in combinatie met natuursteen elementen
• gevelkozijnen voorzien van isolerende beglazing
• brandmeldcentrale
• brandblusmiddelen.

Huurprijs
vanaf € 285,- excl. btw per maand

Optioneel te huren parkeerplaats: € 45,- per maand, exclusief btw.

Service-/energiekosten
€ 100,- excl. btw per maand.

- Energiekosten (gas, elektra, water) ten behoeve van de algemene en gehuurde ruimten;
- Service-abonnement en telefoonkosten liftinstallatie
- Service-abonnement klimaatinstallatie, mechanische deuren en brandmeldcentrale;
- Glasbewassing buitenzijde;
- Schoonmaak algemene ruimten en sanitair, vuilafvoer;
- Ongediertebestrijding;
- Brandpreventie;
- Diverse kosten en incidentele doorbelastingen;
- Alle huurdersgebonden kosten van de VVE;
- Administratiekosten; 5% van de kosten van de door verhuurder te verzorgen bijkomende leveringen en diensten.
Overige services:
• Receptie ontvangt bezoek voor huurders
• Receptie neemt pakketjes aan voor huurders
• De huismeester verricht klusjes in de centrale hal
• Huurders kunnen gebruik maken van de papiercontainer
• Schoonmaakwerkzaamheden hal begane grond

Internet
De aansluiting en het verbruik van data- en telecommunicatievoorzieningen zijn niet in de huurprijs begrepen en dienen door Huurder zelf te worden verzorgd en betaald.

Huurtermijn
Uitgangspunt 3 tot 5 jaar, in overleg met verhuurder.

Betalingstermijn
Per kwartaal vooraf.

Nadere informatie
Indien u nadere belangstelling heeft kunt u voor een bezichtiging contact met ons opnemen via telefoonnummer (0183) 30 40 50 of mail naar info@bmak.nl

Sluiten 0183 30 40 50 Ik heb een vraag