Logo

Hooglandseweg 6

4214 KG Vuren in overleg
Te huur
Foto's (45) Pagina afdrukken
Brochure

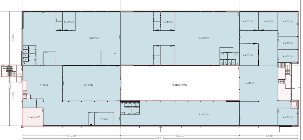
Oppervlakten

Kantoorruimte 2.505 m²
Bedrijfsruimte 11.340 m²

Omschrijving

Een logistieke bedrijfsgebouw voorzien van fraaie kantoorruimte, gelegen op zichtlocatie aan de A15 (Rotterdam/Gorinchem/Nijmegen) ter hoogte van de afslag Vuren.
Het complex betreft een grootschalig logistiek bedrijfscomplex met kantoorruimte. De bedrijfsruimte bestaat uit vier bedrijfshallen, een assemblageruimte en een laad-/losplein.
Het complex is voorzien van palletstellingen, ledverlichting, verwarming, overheaddeuren en loopdeuren.

De kantoorruimte is verdeeld over 2 bouwlagen. Op de begane grond is een ruime entree voorzien van diverse kantoor- en spreekkamers.
De eerste verdieping bestaat uit een ruime kantine, diverse spreekkamers, kantoortuinen, sanitair groepen en een fors dakterras/patio.

Het gebouw kenmerkt zich door een fraaie architectuur, waarbij onder meer veel aandacht wordt besteed aan duurzaamheid en hoogwaardige afwerking.
Zo beschikt het pand over een duurzame klimaatinstallatie, zonnepanelen en energielabel A.
De bedrijfsruimte is tevens voorzien van een GDP – certificaat. Een GDP certificaat heeft het doel de kwaliteit van farmaceutica, biofarmaceutica en OTC tijdens de distributie te handhaven.

Locatie
Het gebouw is gelegen op het in ontwikkeling zijnde bedrijventerrein Zeiving in Vuren, nabij de op- en afritten van de rijksweg A15.
Vanaf de rijksweg A15 is het gebouw goed zichtbaar.
In de directe omgeving bevinden zich diverse grote ondernemingen, waaronder Hartog & Bikker, Medical Export Group, Kleyn Trucks, Maha Explora en Ayvens (voorheen ALD Automotive).
Tevens bevindt zich in de nabijheid een vestiging van McDonalds en Goudreinet alsmede een brandstoffenverkooppunt en snellaadstation.

Oppervlakten
Bedrijfsruimte hoog: 8.060 m²
Bedrijfsruimte laag: 1.980 m²
Expeditie (laad- en losplein): 1.300 m²

Kantoorruimte
Kantoorruimte begane grond: 477 m²
Kantoorruimte 1e verdieping: 2.028 m²
Patio/dakterras: 325 m²

Totale oppervlakte (zonder patio/dakterras) circa: 13.845 m²
NB: de oppervlakten zijn circa en niet opgemeten conform NEN 2580

Parkeren
Parkeren op het voorgelegen parkeerterrein is zeer goed mogelijk. Er zijn totaal circa 158 parkeerplaatsen beschikbaar.
Tevens zijn er diverse parkeerplaatsen v.v. een laadpaal voor elektrische voertuigen.

Bouwkundig
• onderheide betonfundering
• onderheide betonvloer, maximale vloerbelasting 4.000 kg/m²
• opbouw staalconstructie
• unitscheidende wanden gasbetonelementen
• gevels van geïsoleerde stalen gevelbeplating met een betonnen borstwering
• aluminium gevelkozijnen voorzien van HR++ beglazing
• geïsoleerd staaldak
• zonnepanelen

Voorzieningen/installaties
Bedrijfsruimte
• onderheide betonvloer, maximale vloerbelasting 4.000 kg/m²
• vrije hoogte onder de stalen spanten circa 12 meter
• led lichtlijnen
• elektrisch bedienbare overheaddeur
• separate loopdeur
• brandblusmiddelen
• alarmsysteem
• vloerverwarming en vloerkoeling (de bedrijfsruimte is geconditioneerd tussen 5 en 25 graden Celsius)
• oplaadpunten voor heftrucks
• laadkuil met 6 loading docks en enkele overheaddeuren op maaiveldniveau

Kantoorruimte
• entree op de begane grond v.v. trappenpartij met vide en personenlift
• systeemplafonds v.v. led-verlichting
• luchtbehandelingsinstallatie met ventilatie en koeling
• toiletgroep dames en heren
• tapijt
• zonwering
• luxe bedrijfskantine en dakterras

Bestemmingsplan
Ter plaatse is het bestemmingsplan ‘Zeiving Noord-West’ van toepassing. Volgens het bestemmingsplan heeft het gebouw de bestemming ‘Bedrijventerrein’. De gronden zijn bestemd voor:
a. bedrijven die in de van deze regels deel uitmakende bijlage 1 Staat van Bedrijfsactiviteiten zijn opgenomen;
b. kantoren zijn uitsluitend toegestaan als onderdeel van de overige bedrijfsgebouwen, tot een maximum van 1.500 m² bvo kantoor per bedrijf;
c. detailhandel in volumineuze goederen en groothandel met showroom, ter plaatse van de aanduiding
‘detailhandel volumineus’;
d. bedrijfsgebonden detailhandel tot 20% van het totale bedrijfsvloeroppervlak, met een maximum tot 200 m² per bedrijfsperceel;
e. detailhandelsbedrijven die zich uitsluitend toeleggen op postorderactiviteiten en/of verkoop via Internet, waarvan niet meer dan 20% van het totale bedrijfsvloeroppervlak, met een maximum tot 100 m² mag worden gebruikt voor de fysieke uitstalling ter verkoop en de aflevering van goederen per bedrijfsperceel;
f. horeca in categorie 1;
g. wegen, met bijbehorende paden en bermen, ter ontsluiting van bedrijven en voorzieningen;
h. voorzieningen voor verkeer en verblijf;
i. parkeervoorzieningen;
j. watergangen, waterpartijen en groenvoorzieningen;
k. bij een en ander behorende overige voorzieningen, zoals nutsvoorzieningen.

Raadpleeg voor nadere informatie: omgevingswet.overheid.nl

Huurprijs
op aanvraag

Service-/energiekosten
nader te bespreken

Huurtermijn
in overleg

Nadere informatie
Indien u nadere belangstelling heeft dan kunt u voor een bezichtiging contact met ons opnemen via telefoonnummer (0183) 30 40 50 of mail naar info@bmak.nl.

Sluiten 0183 30 40 50 Ik heb een vraag