Logo

Vlietskade 8018

4241 WS Arkel € 695,- per maand
Te huur
Foto's (14) Pagina afdrukken
Brochure

Oppervlakten

Kantoorruimte 73 m²
In units v.a. 73 m²

Omschrijving

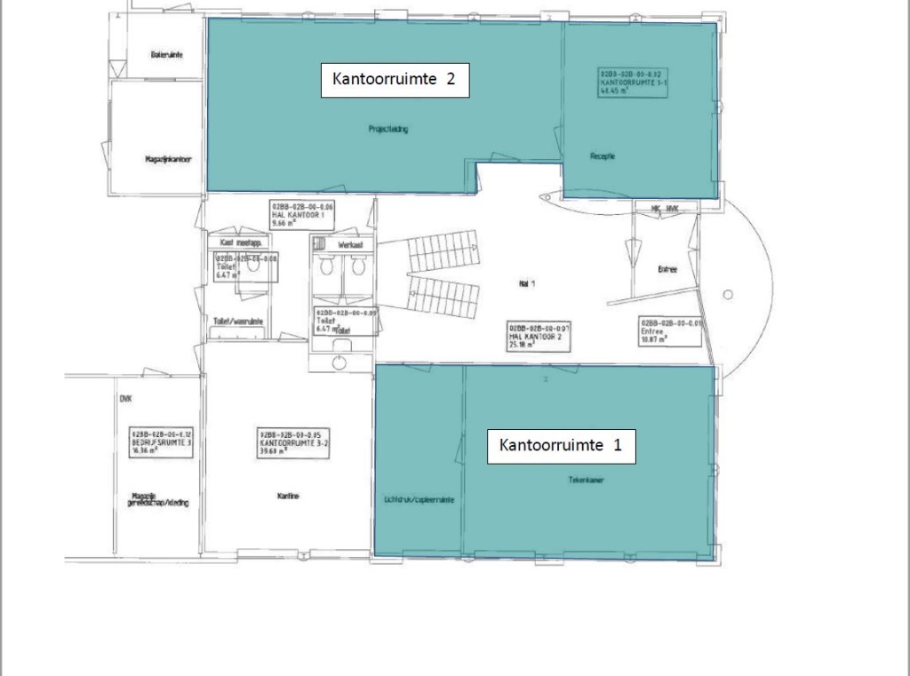
Turn-key kantoorruimten te huur! In Arkel, op bedrijventerrein De Vlietskade bieden wij 2 fraaie, zelfstandige kantoorruimten voor verhuur aan. De kantoorruimten zijn gelegen op de begane grond en bereikbaar via een representatieve entree. Beide kantoorruimten zijn voorzien van een tweetal kamers. Het gebruik van o.a. sanitaire ruimten en kantine met pantry is gezamenlijk of in overleg aan te brengen in de kantoorruimten.
Parkeerplaatsen zijn beschikbaar op eigen terrein en in ruime mate aanwezig.

Turn-key kantoorruimten op de begane grond:

- Kantoorruimte 1: 72,50 m² (ca.)
- Kantoorruimte 2: VERHUURD

Totale oppervlakte: circa 72,5 m²

Locatie
De kantoorruimten zijn gelegen op het bedrijventerrein Vlietskade te Arkel. De bereikbaarheid van het object per (vracht)auto is goed. De op- en afritten vanaf rijksweg A15 en A27 zijn beide op ca. 7 autominuten afstand gelegen. De omliggende objecten zijn representatief en verzorgd.

Kantoorruimten
- systeemplafonds met verlichting en bewegingsmelders
- verwarming d.m.v. radiatoren en koeling via plafondunits
- raambekleding / lamellen
- wand- en vloerafwerking
- kabelgoten v.v. huidige bekabeling
- toiletgroep met toiletruimten dames/heren (gezamenlijk)
- pantryblok in de kantine (gezamenlijk)
- algemene entree met wachtruimte
- intercomsysteem v.v. camera
- alarminstallatie
- glasvezel is beschikbaar

Parkeren
Naast het gebouw is ruime parkeergelegenheid beschikbaar voor huurder en medehuurders van de kantoorruimte.

Bestemmingsplan
Ter plaatse is het bestemmingsplan “Bedrijventerrein Arkel” van kracht. Het onderhavige perceel heeft de bestemming ‘Bedrijventerrein’ met de functieaanduiding ‘bedrijf tot en met categorie 3.1’.
De voor ‘Bedrijventerrein’ aangewezen gronden zijn bestemd voor:
- ter plaatse van de aanduiding 'bedrijf tot en met categorie 3.1': bedrijven uit categorie 3.1 van de Staat van Bedrijfsactiviteiten 'bedrijventerrein';
- bedrijfsgebonden kantoren;
- bij deze bestemming behorende voorzieningen, zoals nutsvoorzieningen, verkeers- en parkeervoorzieningen, laad- en losvoorzieningen, water(berging) en groen.

Voor meer informatie over de bestemming, raadpleeg www.ruimtelijkeplannen.nl

Energielabel
Het object is voorzien van energielabel C

Huurprijs:
- Kantoorruimte 1 € 695,- excl. btw
- Kantoorruimte 2 VERHUURD

Servicekosten:
- Kantoorruimte 1 gas/water/elektra € 195,- excl. btw schoonmaak € 115,- excl. btw
- Kantoorruimte 2 VERHUURD

Informatie en bezichtiging:
Voor meer vragen en/of een vrijblijvende bezichtiging, kunt u contact met ons opnemen via telefoonnummer (0183) 30 40 50 of mail naar info @ bmak.nl

Sluiten 0183 30 40 50 Ik heb een vraag