Logo

Hakgriend 22

3371 KA Hardinxveld-Giessendam € 22.917,- per maand
verhuurd
Foto's (15) Pagina afdrukken
Brochure

Oppervlakten

Kantoorruimte 2.680 m²
In units v.a. 675 m²

Omschrijving

Een strategisch gelegen kantoorgebouw, op een prominente zichtlocatie langs aan de rijksweg A15. De ligging aan een van de drukste snelwegen is een uitstekend middel om de herkenbaarheid van uw bedrijf te vergroten!

Het gebouw bestaat uit een kantoorruimte over 3 lagen met omliggende parkeerterrein. Het kantoorgebouw is verbonden aan de achtergelegen bedrijfsruimte, die is verdeeld over meerdere compartimenten.

De mogelijkheden van het gebouw zijn legio. Een gebruik als showroom, trainingsruimte, sportschool, groothandelsfunctie (B2B) bestaat tot de mogelijkheden. Deelverhuur per etage is mogelijk.

De kantoorruimten zijn toegankelijk door middel van een hoofdentree met trapopgang en via een entree aan de zijkant van het gebouw.

Locatie
Het gebouw ligt op een zichtlocatie langs de rijksweg A15, op bedrijventerrein ‘Nieuweweg’. De op- en afritten van de rijksweg bevinden zich op een steenworp afstand. Via het openbaar vervoer is de locatie via een busverbinding bereikbaar. Een bushalte ligt op loopafstand aan de Nieuweweg. Hardinxveld beschikt eveneens over diverse treinstations.

Energielabel
Het object beschikt over energielabel A

Oppervlakten
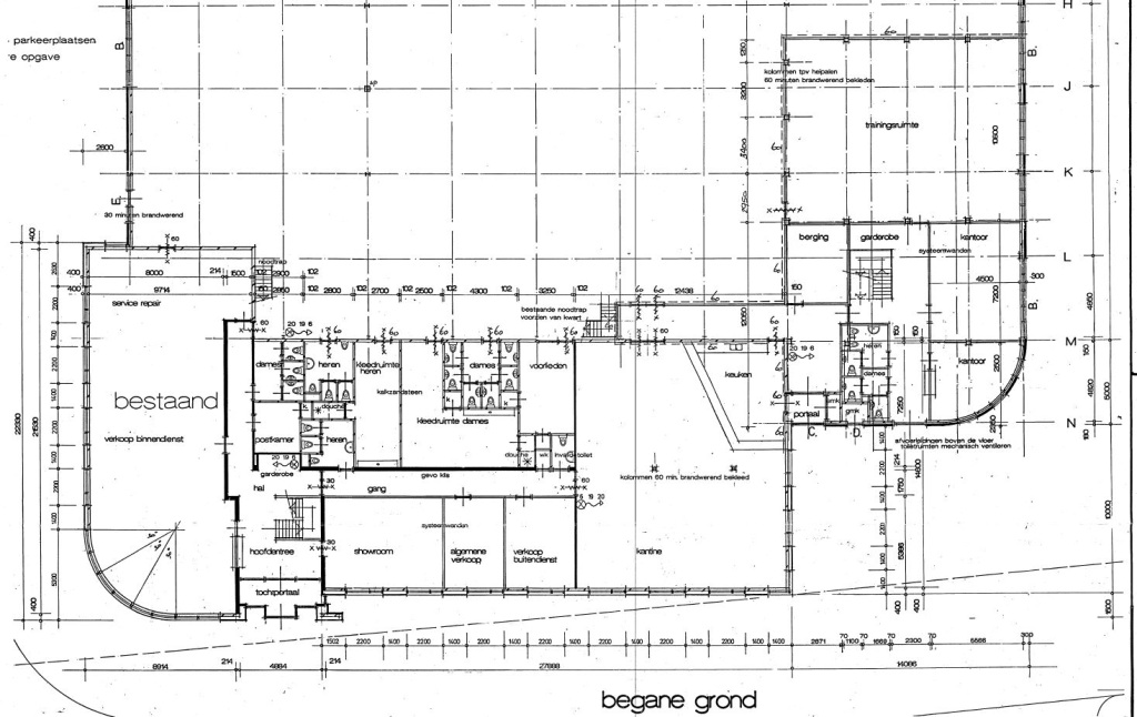
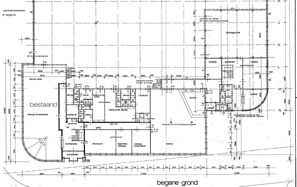
Begane grond
• Kantoorruimte 1.020 m²

1e verdieping
• Kantoorruimte 985 m²

2e verdieping
• Kantoorruimte 675 m²

Totale oppervlakte circa 2.680 m²
Parkeerplaatsen circa 35 stuks


Parkeren
Circa 35 gemarkeerde parkeerplaatsen beschikbaar op eigen terrein. Op het terrein is tevens een fietsenstalling
aanwezig.

Bestemming
Ter plaatse is het bestemmingsplan ‘Hardinxveld-Giessendam, bebouwd gebied’ van kracht. Het pand is bestemd als ‘Bedrijventerrein’ met functieaanduiding tot en met categorie 4.1.’

Voor nadere informatie wordt verwezen naar https://omgevingswet.overheid.nl/regels-op-de-kaart/.

Bouwkundig
Algemeen
• onderheide betonfundering
• betonnen vloeren op de begane grond en verdiepingen
• opbouw staalconstructie
• gemetselde borstwering met geïsoleerde gevelpanelen
• gevels kantoorruimte v.v. gevelpanelen
• aluminium gevelkozijnen met isolerende beglazing
• geïsoleerd staaldak voorzien van dakbedekking
• brandblusmiddelen
• laadpalen.

Voorzieningen
Kantoorruimte
• ruime hoofdentree met trappenhuis
• systeemplafonds met verlichtingsarmaturen
• vloerafwerking o.a. tapijt, natuursteen, marmoleum/pvc, tegelwerk
• inpandige scheidingswanden bestaande uit bouwkundige wanden en systeemwanden
• wandgoten ten behoeve van bekabeling
• per laag een pantry
• per laag een geheel betegeld toiletgroep
• bedrijfsrestaurant met professionele keuken opstelling
• verwarming middels cv-installatie met radiatoren
• airconditioning d.m.v. splitunits
• zonwering door middel van screens.

Huurprijs
Prijs op aanvraag

Deelverhuur per laag is bespreekbaar.

Servicekosten
In overleg nader te bepalen.

Informatie en bezichtiging
Voor meer vragen en/of een vrijblijvende bezichtiging, kunt u contact met ons opnemen via telefoonnummer (0183) 30 40 50 of mail naar info@bmak.nl

Sluiten 0183 30 40 50 Ik heb een vraag