Logo

Hei- en Boeicopseweg 6

4126 RJ Hei- En Boeicop € 1.530,- per maand
verhuurd
Foto's (12) Pagina afdrukken
Brochure

Oppervlakten

Bedrijfsruimte 245 m²

Omschrijving

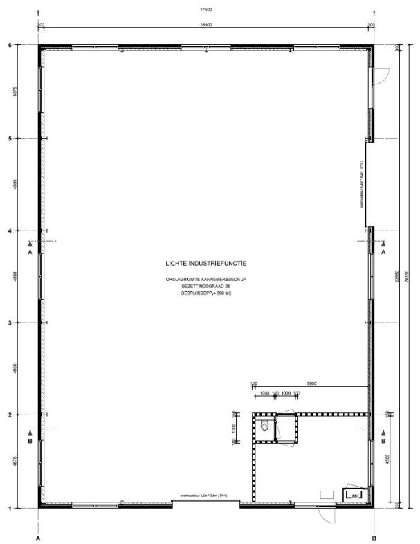
Ruime en praktisch te gebruiken nieuwbouw opslagloods van circa 23,5 m diep x 17 m breed. De loods beschikt over een inpandige kantoor-/kantineruimte, isolatie in gevels, dak en beglazing, LED-verlichting, 230V en 380V aansluitingen, toiletruimte etc. Het object is tevens voorzien van eigen aansluitingen op de nutsvoorzieningen elektra, water en data.
Optioneel is het mogelijk om de 200 PV-panelen op het dak van de loods te huren. Tevens bestaat de mogelijkheid tot het huren van palletstellingen.

Locatie
Hei- en Boeicop is een klein dorp in de gemeente Zederik, in de Nederlandse provincie Zuid-Holland. Vanaf rijksweg A27 ligt het object op circa 7 autominuten afstand, vanaf rijksweg A2 op circa 10 autominuten.

Hei- en Boeicop kenmerkt zich door de centrale ligging, met de steden Gorinchem, Culemborg, Rotterdam, Utrecht en Den Bosch binnen bereik. De bebouwing van het langgerekte dorp spreidt zich nagenoeg uit van de A2 tot de A27, tussen Leerdam en Vianen.

Let op: in verband met de beperkte breedte van de brug over de wetering is het object beperkt toegankelijk voor vrachtverkeer.

Bouwjaar
2023

Oppervlakten
Bedrijfsruimte begane grond 245 m²


Parkeren
T.b.v. laden en lossen kan op het met stelconbeplating verharde terrein plaatsvinden.

Bestemmingsplan
Ter plaatse geldt het bestemmingsplan “buitengebied Zederik. In dit bestemmingsplan heeft de locatie de bestemming ‘Bedrijf’ met functieaanduiding ‘specifieke vorm van bedrijf – bouwinstallatiebedrijf. Dit betekent dat de paars gearceerde gronden en de daarop gevestigde panden gebruikt mogen worden door bedrijven in categorieën 1 en 2 van de Staat van Bedrijfsactiviteiten. Tevens mag er een bouwinstallatiebedrijf worden gevestigd.
Raadpleeg voor de volledige bestemmingsomschrijving www.ruimtelijkeplannen.nl

Bouwkundig
• Staalconstructie
• Gevels deels uitgevoerd in van kalkzandsteen vellingkantblokken en metselwerk, in spouw (Rc = 3,7)
• Gevels deels uitgevoerd in sandwichpanelen v.v. gevelbeplating (Rc = 3,7)
• Zadeldak v.v. sandwichpanelen (Rc = 3,7)
• Aluminium kozijnen v.v. dubbele beglazing
• Stelconplaten vloer
• Betonnen vloer in de kantoor-/kantineruimte, v.v. voorbereiding voor vloerverwarming (na installatie warmtepomp)

Voorzieningen
Bedrijfsruimte
• Elektrisch bedienbare overheaddeur (4,40 m breed en 4,20 m hoog) in de zijgevel
• Elektrisch bedienbare overheaddeur (3,50 m breed en 3,50 m hoog) in de kopgevel
• LED-verlichting
• Moderne toiletruimte
• Pantryblokje
• Elektra 230v en 380v
• Data-aansluiting
• Eigen nutsvoorzieningen elektra en water
• Voorbereiding vloerverwarming in het kantoor
• Optioneel: huur van 200 PV panelen
• Optioneel: huur van palletstellingen

Huurprijs
€ 1.530,- per maand exclusief btw.

Voorschot servicekosten
Nader te bepalen

Huurtermijn
Bij voorkeur een huurtermijn van 3 jaar of langer.
Andere huurtermijnen in overleg met verhuurder.

Aanvaarding
Per 1 oktober 2025, of zoveel eerder of later in overleg

Nadere informatie
Indien u nadere belangstelling heeft dan kunt u voor een bezichtiging contact met ons opnemen via telefoonnummer (0183) 30 40 50 of mail naar info@bmak.nl.

Sluiten 0183 30 40 50 Ik heb een vraag